Почти идеальный дом 260.0м2
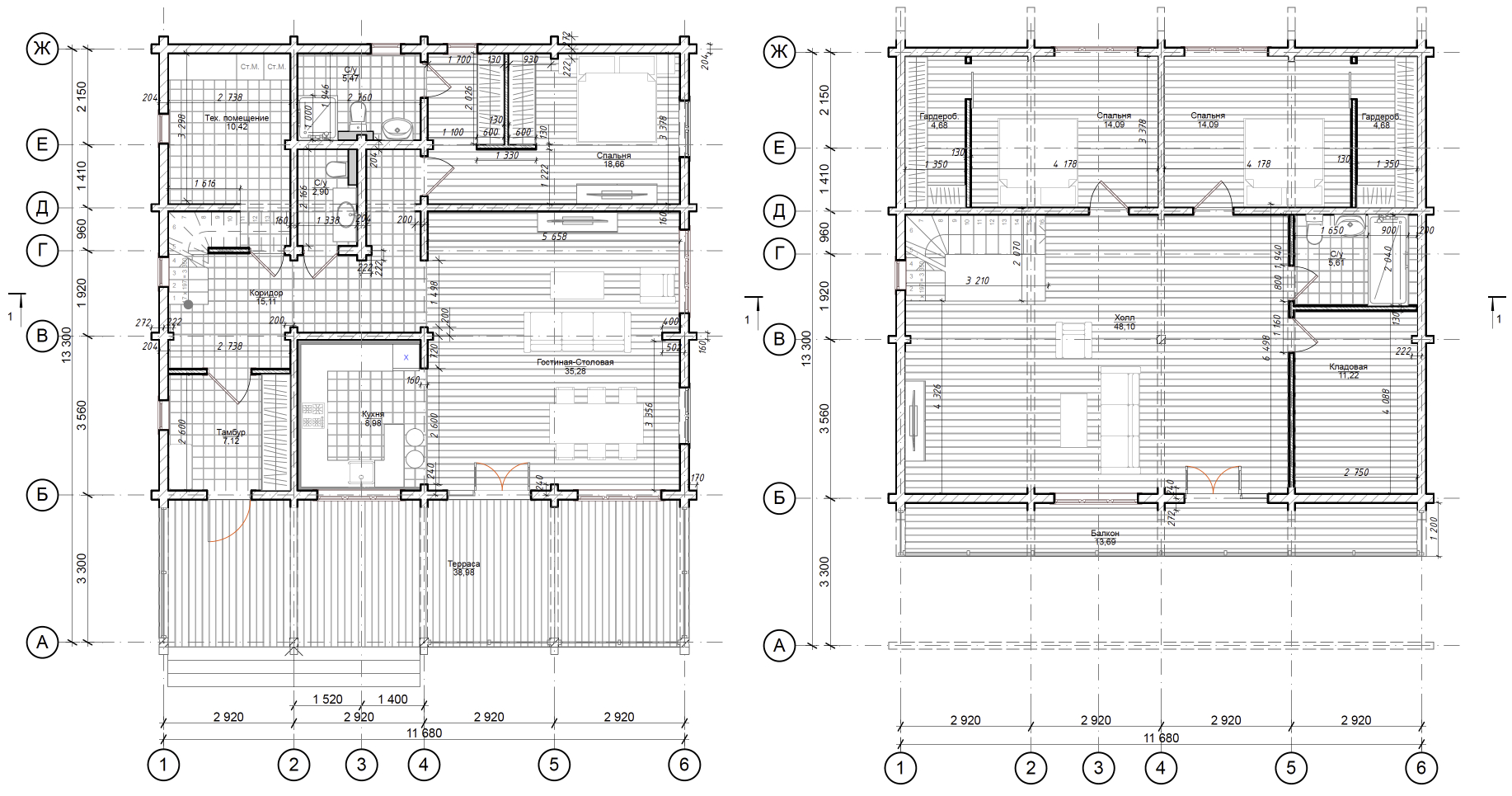
      Размеры дома: 13,3х11,6м
      Общая площадь: 260.0м2
      
        Базовая стоимость: 20 800 000 ₽
      
    
Получите консультацию по этому дому
Почти идеальный дом 260.0м2
          Размеры дома: 13,3х11,6 м
          
          Площадь 1-го этажа: 143,0 м²
          
          
          Площадь 2-го этажа: 116,0 м²
          
          Общая площадь: 260.0 м²
        
В данном сооружении использовался клееный брус сечением Ш 185/В 200 мм.
Тепловой контур (базовый комплект дома) включает в себя:
- устройство свайно-забивного фундамента,
- монтаж стен из клееного бруса,
- использование сухого строганного пиломатериала в конструкции,
- монтаж балок перекрытия 1-ого и 2-ого этажа с утеплением 200 мм,
- монтаж стропильно-балочной системы,
- устройство кровли — металлочерепица или мягкая кровля,
- монтаж кровли с утеплением 200 мм и установкой водосточной системы,
- обработку стен шлифовкой и покраской в два слоя защитным составом,
- обшивку свесов карнизов отделочной рейкой,
- монтаж пластиковых окон (профиль Rehau 70 мм, двухкамерный стеклопакет с энергосберегающим и мультифункциональным стеклом),
- монтаж входной двери,
- установку оконных и дверных блоков с москитными сетками, ограничителями открывания, подоконниками и отливами,
- сверловку кабель-каналов под последующий монтаж электропроводки.
          
            Стоимость базового комплекта, включая материалы и работы: 
20 800 000 руб.
          
        
Цена под ключ зависит от индивидуальных предпочтений заказчика. Окончательную цену данного проекта Вы можете уточнить по телефону.
Срок строительства 9 месяцев.
Напишите нам
Наш сайт использует cookies. Продолжая им пользоваться, вы соглашаетесь на обработку персональных данных в соответствии с Политикой конфиденциальности и Обработки персональных данных

 
            
             
            
             
            
             
            
             
            
             
            
             
            
             
            
             
            
             
            
             
            
             
            
             
            
             
            
             
            
            